Casa indipendente in vendita

Lanciano, Via costa di chieti
€ 245.000
5 locali 5 locali
250 Mq 250 Mq
3 bagni 3 bagni

Casa indipendente in vendita

Lanciano, Via costa di chieti

Descrizione annuncio

TECNOCASA LANCIANO

Soluzione indipendente su più livelli con attività agricola ed ampio spazio esterno.

Contattaci per una visita gratuita!

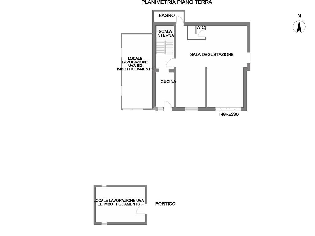
Proponiamo in vendita una soluzione indipendente su più livelli con ampio spazio esterno ed un locale con fini strumentali per l'agricoltura.

Al piano terra, il fascino dello stile rustico accoglie ambienti pensati per trasformare la tua passione in realtà. Un locale dedicato alla lavorazione dell’uva e all’imbottigliamento, una suggestiva sala degustazione perfetta per eventi e incontri, cucina funzionale e doppi servizi. Il tutto impreziosito da pavimentazione uniforme, aria condizionata e un camino che regala atmosfera e carattere in ogni stagione. Uno spazio ideale per chi sogna di avviare o ampliare un’attività agricola, vitivinicola o ricettiva.

Salendo al primo piano, attraverso una comoda scala interna, si apre la zona abitativa: un luminoso soggiorno con angolo cottura, due ampie camere matrimoniali, una cameretta/studio perfetta anche per lo smart working, bagno finestrato con vasca e uno splendido balcone perimetrale che abbraccia l’intero piano. Qui ogni ambiente è pensato per offrire comfort, privacy e qualità della vita.

Al secondo piano, una soffitta allo stato grezzo rappresenta una straordinaria opportunità: può diventare un ulteriore appartamento, uno spazio per ospiti, uno studio creativo o una nuova fonte di reddito. Una tela bianca pronta a prendere forma secondo le tue esigenze.

All’esterno, un ampio giardino di circa 600mq e un portico accogliente con ulteriore locale per lavorazione uva e imbottigliamento completano la proprietà, offrendo spazi versatili, funzionali e perfetti anche per momenti conviviali all’aria aperta.

Questa è la soluzione ideale per chi desidera indipendenza, spazio e la possibilità concreta di unire abitazione e attività in un unico contesto.
È la scelta di chi non vuole semplicemente comprare una casa, ma costruire un futuro.

Contattaci per saperne di più!

Mostra tutto

Nelle vicinanze

Scuole Scuole
scuola primaria Frisa
1,6 Km
scuola primaria olmo di riccio
2,3 Km
Scuola Elementare Eroi Ottobrini
2,8 Km
istituto Gesu Bambino
3,0 Km
Scuola Media Giuseppe Mazzini
3,0 Km
Farmacia Farmacia
Farmacia F.lli Marciani
2,7 Km
Supermercati Supermercati
Supermercati
1,8 Km
Negozi Negozi
Panificio
2,6 Km
Susi
2,7 Km
Luisa Spagnoli
2,8 Km
Brums
3,0 Km
Bar Bar
Bar
420 m
Caffé ai Portici
2,7 Km
Caffè ai Portici
2,7 Km
Ristoranti Ristoranti
Ristoranti
2,2 Km
Ristorante La Furnacelle
2,5 Km
Taverna Anxa
2,5 Km
Ristorante Pizzeria La Torre
2,6 Km
Natural Bistrot
2,8 Km
Mostra tutto

Caratteristiche

Rif.:
61175296
Piano:
Su più livelli di 2
Totale piani:
2
Posti auto:
2
Balconi:
1
Camere da letto:
3
Mostra tutto
Prezzo Prezzo
€ 245.000
Rata mutuo Rata mutuo
€ 1.155 / mese
Spese annue Spese annue
€ 0
Proponi il tuo prezzoProponi il tuo prezzo
Immobile valutato con T·Valuta

Classe Energetica

F
F
F
F
F
F
F
F
F
Anno di costruzione:
1975
Riscaldamento:
Autonomo
Tipo impianto:
A radiatori
Tipo alimentazione:
Metano

Ti interessa visionare l'immobile?

Fissa un appuntamento  Fissa un appuntamento

Richiedi informazioni

Clicca su Leggi per aprire l'informativa
* Questi campi sono obbligatori

Calcola il tuo mutuo

Semplice e senza impegno
Anticipo

( % )
Mutuo

( % )

pochi semplici passi

inserisci i tuoi dati
Questionario completato
Grazie per aver richiesto un appuntamento senza impegno con un nostro Consulente del Credito e Assicurativo.

Hai inserito correttamente tutti i dati necessari e a breve riceverai una e-mail con un link da convalidare per inviare i tuoi dati.
Affiliato
Valorecasa Srl
Via Gorizia, 2 66034 Lanciano (CH)

Il nostro staff


  • Michele D'Angelo
    Affiliato

  • Ana Maria Ferche
    Collaboratrice

  • Valeria Mattucci
    Coordinatrice

  • Cristiana Peluso Cassese
    Responsabile

  • Pierluigi Peluso Cassese
    Affiliato
Via Gorizia, 2 66034 Lanciano (CH)
Zona: Lanciano
Mostra su mappa
Affiliato
Valorecasa Srl
Via Gorizia, 2 66034 Lanciano (CH)

2026 Tecnocasa Franchising S.p.A. - P. IVA 08365160152 - Via Monte Bianco 60/A 20089 Rozzano (MI). Ogni agenzia ha un proprio titolare ed è autonoma. Privacy policy | Policy utilizzo | Cookie policy